Start a project

Western Road, Brighton

Conversion of dual frontage commercial building to mixed-use commercial and residential development.

This project is a mixed-use development of an existing four-story building in central Brighton with frontages on both the busy high street of Western Road, and the Regency period, residential Clarence Square.

Maximising the value of a prominent city centre building

This project is a mixed-use development of an existing four-story building in central Brighton with frontages on both the busy high street of Western Road, and the Regency period, residential Clarence Square.

The retail unit is entered from the Western Road frontage and the apartments from the quieter Clarence Square side.

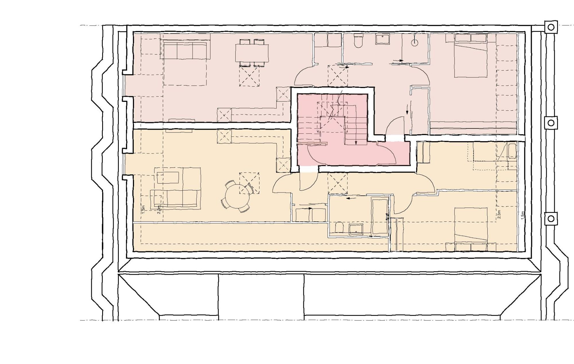
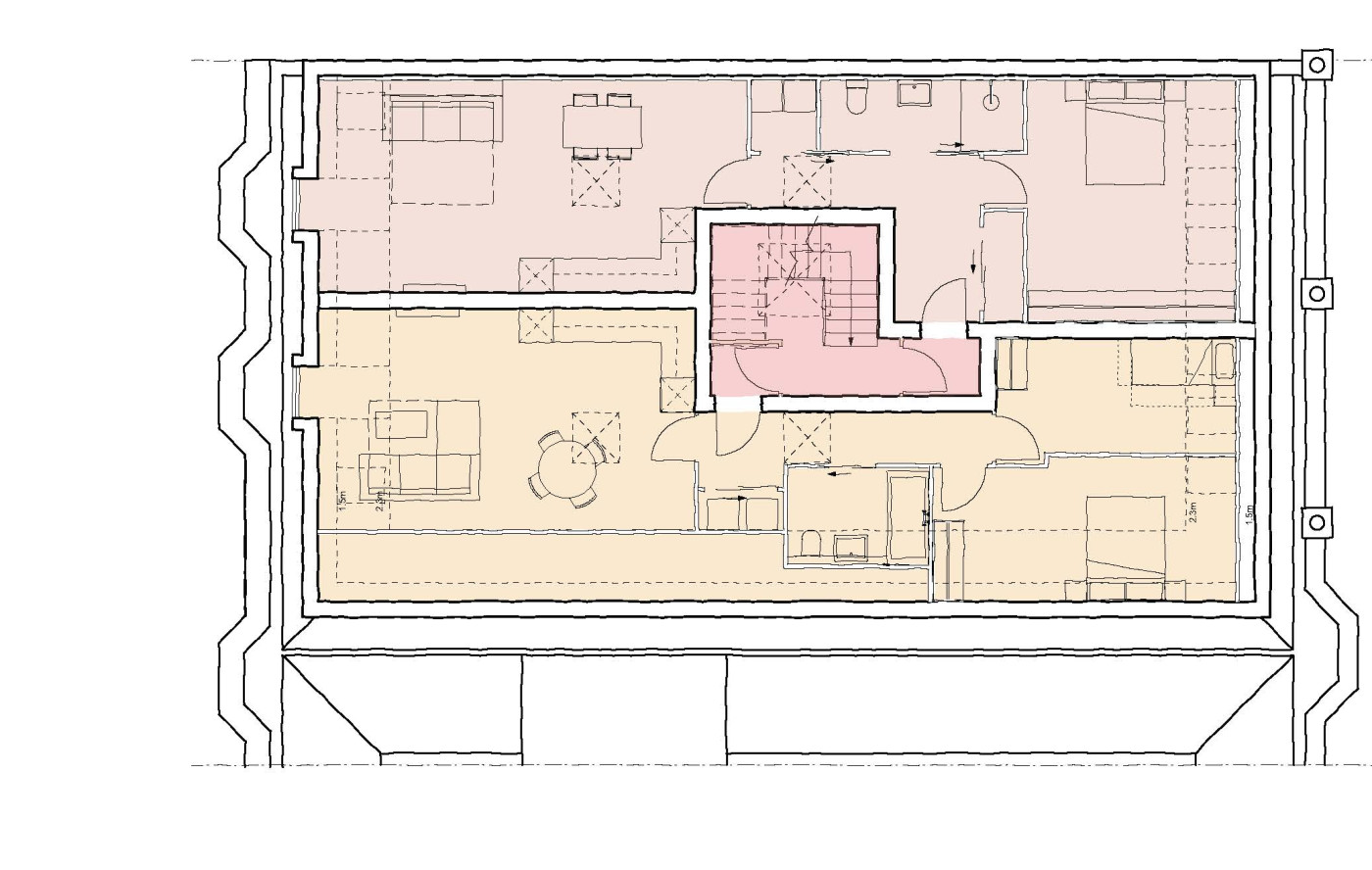
The key design challenge was to create the required number of high-quality residential units to make the project viable within the existing building envelope. This includes adding a third-floor level by inserting new floor plates at second and third floors and carefully planning the internal layouts to maximize efficiency and to make best use of the existing windows.

Phase 1 of the project, involved the necessary enabling and separation works to form the retail unit and to allow the development of the residential apartments to follow on afterwards. The retail unit remained fully operational throughout the Phase 2 construction works.

architectural plans
Photos of the completed apartments

Photo of Western Road retail unit frontage taken before the works

Location

The development is located in the Brighton, East Sussex.